Atendimento Whatsapp WEB

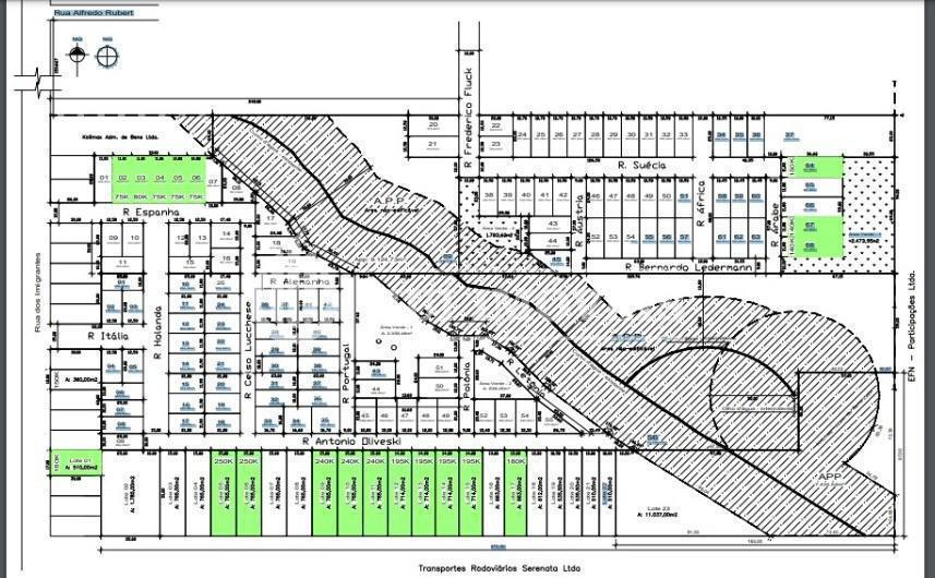
MUNDSTOCK - LOTEAMENTO IMIGRANTES III - 765M² Cód. V2849

Rua Antonio Oliveski, Imigrantes Iii - Ijui / RS
R$ 300.000,00

Os imóveis anunciados poderão sofrer alterações de valores sem aviso prévio ou não estarem mais disponíveis.

 
Ampliar
Ampliar
Ampliar
Ampliar
Ampliar
 
  • Área Total:765,00 m²
  • Perfil: Usado

Área Total do Terreno 765,00m² : 15,00m de largura X 51,00m de comprimento.

  • Acima do Nível da Rua
  • Energia Elétrica
  • Plano
  • Rua c/ Pavimentação

LOCALIZADO EM PARTE ALTA

Rua com piso intertravado

Imóveis vizinhos são todas construções novas

Acima do nível da rua

Excelente posição solar

Frente Norte

 

 

(55) 3333-0606

(55) 99963-9798

  LOCALIZAÇÃO - MUNDSTOCK - LOTEAMENTO IMIGRANTES III - 765M²

Ver Rua

IMÓVEIS SIMILARES

Usamos cookies para personalizar e melhorar a sua experiência. Ao navegar neste site, você concorda com a nossa Política de Privacidade.