Atendimento Whatsapp WEB

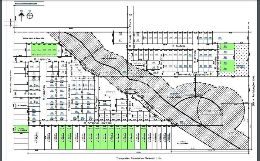
TERRENO - LOTEAMENTO IMIGRANTES I - 714M² Cód. V3724

LOTE 15, Imigrantes Ii - Ijui / RS
R$ 285.000,00

Os imóveis anunciados poderão sofrer alterações de valores sem aviso prévio ou não estarem mais disponíveis.

 
Ampliar
Ampliar
Ampliar
Ampliar
Ampliar
 
  • Área Total:714,00 m²

Área Total do Terreno 714,00m² : 14,00m de largura X 51,00m de comprimento.

  • Energia Elétrica
  • Regular
  • Rua c/ Pavimentação

  LOCALIZAÇÃO - TERRENO - LOTEAMENTO IMIGRANTES I - 714M²

Ver Rua

IMÓVEIS SIMILARES

Usamos cookies para personalizar e melhorar a sua experiência. Ao navegar neste site, você concorda com a nossa Política de Privacidade.