Atendimento Whatsapp WEB

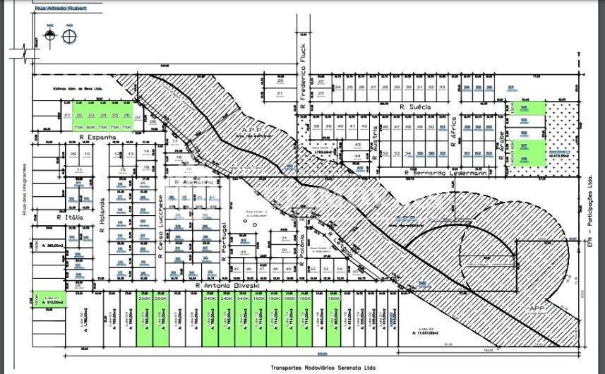
LOTEAMENTO IMIGRANTES III - 765M² Cód. V2764

LOTE 06, Imigrantes Ii - Ijui / RS
R$ 320.000,00

Os imóveis anunciados poderão sofrer alterações de valores sem aviso prévio ou não estarem mais disponíveis.

 
Ampliar
Ampliar
Ampliar
Ampliar
Ampliar
 
  • Área Total:765,00 m²

Área Total do Terreno 765,00m² : 15,00m de largura X 51,00m de comprimento.

  • Energia Elétrica
  • Regular
  • Rua c/ Pavimentação

Rua com piso intertravado

Imóveis vizinhos são todas construções novas

  LOCALIZAÇÃO - LOTEAMENTO IMIGRANTES III - 765M²

Ver Rua

IMÓVEIS SIMILARES

Usamos cookies para personalizar e melhorar a sua experiência. Ao navegar neste site, você concorda com a nossa Política de Privacidade.